Stavební povolení

Ve fázi stavebního řízení nebo ohlášení stavby dochází k doplnění podrobnějších informací, a to ve všech směrech. Stavební část je rozšířena a celá dokumentace je doplněna o část, která řeší jednotlivé profese a potřebné doklady k povolení stavby.

  • Požárně bezpečnostní řešení
  • Statická část
  • Vodovod
  • Vnitřní plynovod
  • Elektroinstalace
  • Ústřední vytápění
  • Průkaz energetické náročnosti budovy
  • Vnitřní splašková kanalizace
  • Přípojka vodovodu
  • Přípojka splaškové kanalizace
  • Přípojka dešťové kanalizace
  • Přípojka plynovodu
  • Přípojka elektro
  • A další části (studna, čistírna odpadních vod, zpětné využití dešťových vod, vrty tepelného čerpadla, …)

Možná Vám výše uvedené rozšíření dokumentace bude připadat zbytečné, a to ve smyslu zbytečných investicí do projektu. Ale věřte, že opak je pravdou. Obsah dokumentace v této fázi je dán vyhláškou v stavebním zákoně jako ochrana Vás stavebníků, což mnozí investoři, zejména individuální bytové výstavby vnímají jako byrokracii anebo spoléhají na benevolenci úředníků na stavebním úřadě, kde doručí nekompletní projektovou dokumentaci.

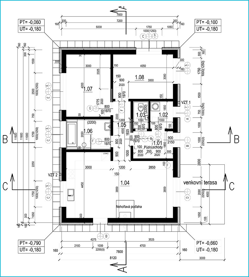
Půdorys rodinného domu ve stupni pro stavební povolení
Půdorys rodinného domu ve stupni pro stavební povolení

Upřesněná a komplexnější dokumentace je opět podána na příslušné dotčené orgány státní správy, správce inženýrských sítí a samozřejmě vlastníkům okolních pozemků. Po získání souhlasných stanovisek výše uvedených stran je pak projektová dokumentace podána ke schválení na stavební úřad. Ten zkontroluje obsahovou náplň projektu, zpracování požadavků všech účastníků řízení a vydá stavební povolení či ohlášení stavby. O tomto procesu více v kapitole „Inženýrská činnost“.

V případě zpracování nekompletní dokumentace, kterou bohužel některé stavební úřady tolerují, dochází k povolení stavby na základě nedostatečné dokumentace, což sice zajistí možnost stavět, ale pro investora začíná to nejhorší, co se mohlo stát. Nemáte dokonalou představu o stavebním a statickém řešení, systémech zdravotechniky, vytápění a dalších prvcích objektu. O finančních a časovém hledisku ani nemluvě.

icon-dotaznik Dotazník investora

2026 © DAMprojekt