Pasportizace objektů

„Proč mít přehled o svém majetku?“

Pasportizace je popis skutečného stavu věcí. V případě pasportizace objektů se jedná o základní činnost při správě majetku, a to bez ohledu, jestli se jedná o byt, rodinný dům nebo bytový dům či administrativní budovu. Výsledkem je dokument, který popisuje:

  • základní rozměry (tzv. celková plocha pozemku, zastavěná plocha objektem, plocha zpevněných / nezpevněných ploch, obestavěný prostor, podlahovou plochu místností, plochu fasád, střešních rovin, počet, velikost a členění oken)
  • informaci o konstrukčním a materiálovém řešení základních stavebních konstrukcí (základy, zdi a sloupy, stropy, schodiště, střecha)
  • informaci o konstrukčním a materiálovém řešení podružných stavebních konstrukcí (okna, vnitřní a vnější dveře a povrchové úpravy – fasáda, podlahy, omítky, obklady)
  • popis technických zařízení budov (dále jen TZB) (trasy, materiál a popis rozvodů vody, kanalizace, elektroinstalací, systému vytápění, případně vzduchotechniky)
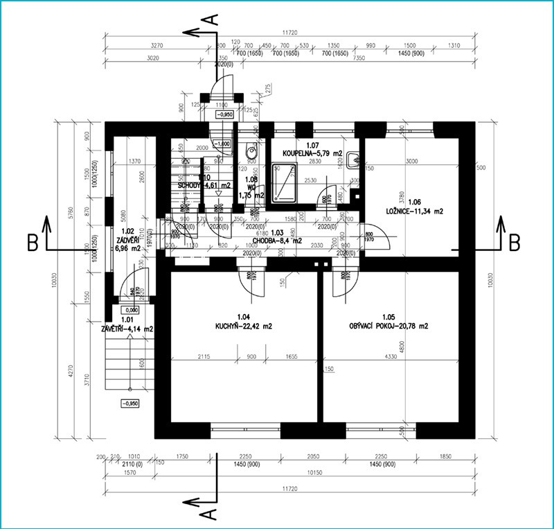
Pasportizace - Rodinný dům Šlapanice
Pasportizace - Rodinný dům Šlapanice

Výše uvedené slouží jako podklad pro:

  • správu a údržbu nemovitosti, tj. opravy či úpravy drobného rozsahu (např. opravy či výměny podlah, nové dlažby a obklady, oprava omítek a nové malby, realizace zateplení fasády, výměna oken a dveří)
  • plánovanou rekonstrukci či úplnou demolici objektu (otvory ve zdech, stropech, střechách, dílčí a celkové rekonstrukce objektů)
  • úplnou demolici objektu (jako součást projektové dokumentace dle legislativy)
  • optimalizaci nákladů na údržbu a obnovu po dobu životnosti objektu
  • při prodeji či pronájmu bytu
  • pro dokumentaci na dotační program Nová zelená úsporám
  • pro tvorbu průkazu energetické náročnosti budovy (PENB)

V případě požadovaných oprav budete mít k dispozici jednotné zadání pro malíře, podlaháře či obecně firmu, která se uchází o realizaci Vašich plánů. Při jednání s řemeslníky nebo zástupci stavebních firem nebudete pouze odhadovat či přibližně počítat množství materiálu, velikost oken či jiné parametry bytu nebo domu, ale můžete využít přesných hodnot, a tím pádem budete mít přesnější výsledky svého porovnání jako podklad pro cenovou nabídku.

Cena

závisí na stáří, velikosti a dispozičním řešení objektu a na existenci projektové dokumentace stávajícího stavu. V případě rodinného domu běžné velikosti se pohybuje ve výši od 15.000 Kč. Objekty jiné velikosti jsou předmětem individuální kalkulace.

Termín

v případě rodinného domu běžné velikosti přibližně 1 měsíc.

icon-dotaznik Dotazník investora

2026 © DAMprojekt