Zaměření jídelny výrobního závodu v Prostějově

Představení investora

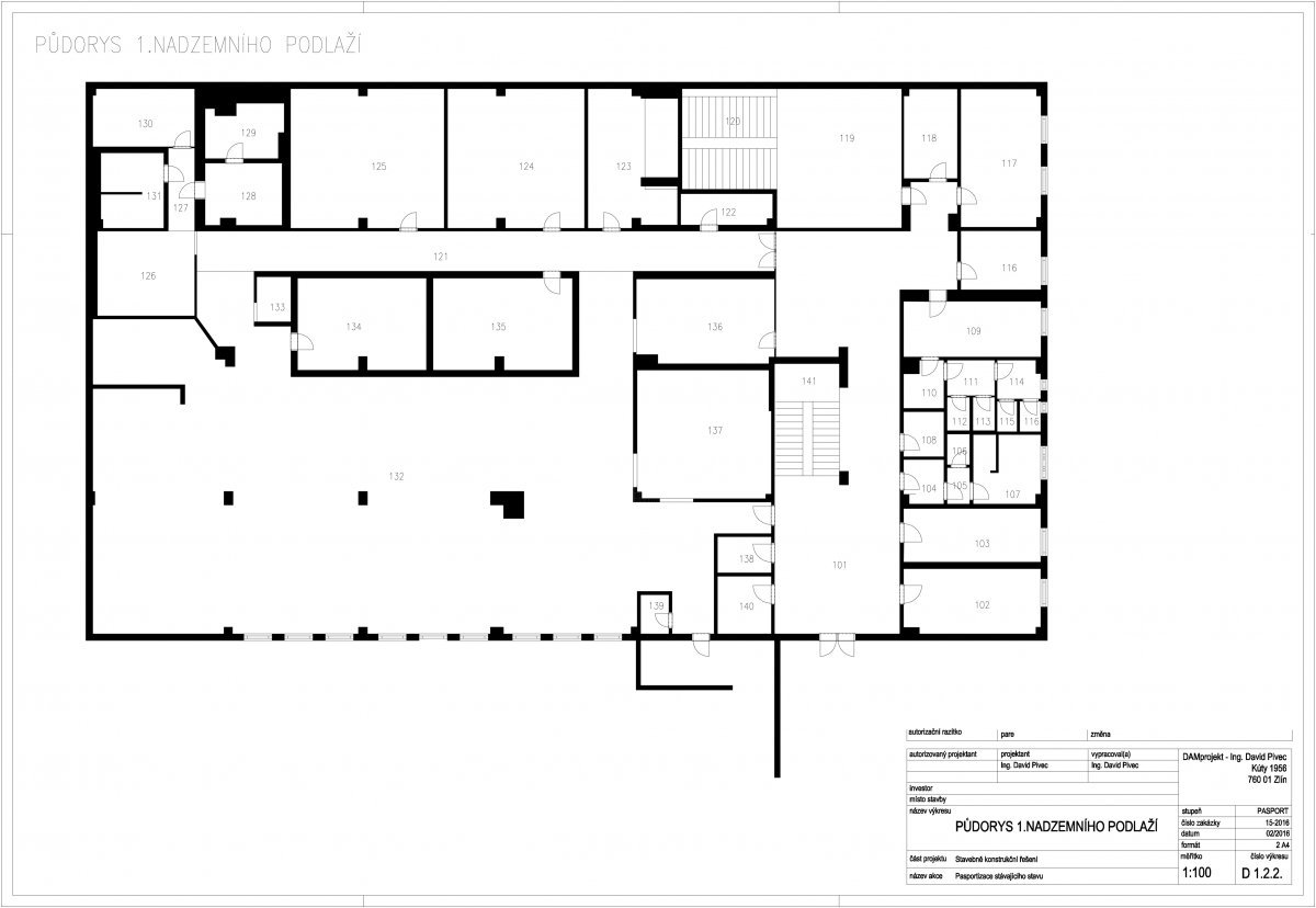
Investorem byl výrobní závod v Prostějově, který se na nás obrátil s požadavkem zpracovat zaměření skutečné plochy objektu jídelny. Tuto budovu ve svém areálu pronajímaly soukromé společnosti zajištující stravování zaměstnanců a z důvodu rozporu o skutečné ploše pronajímaných prostor potřebovaly zpracovat pasport objektu.

Popis naší činnosti

  • Pasportizace – v rozsahu zaměření ploch

Naše řešení

Po úvodní schůzce a zajištění dostupných podkladů byly všechny prostory zaměřeny laserovým dálkoměrem a vytvořeny schématické stavební výkresy půdorysů jednotlivých podlaží.

Následně byla stanovena plocha jednotlivých místností, podlažní plocha a celková plocha objektu.

bg-hp-service
bg-hp-service
bg-hp-service
bg-hp-service
bg-hp-service
bg-hp-service
bg-hp-service

icon-dotaznik Dotazník investora

2025 © DAMprojekt