Novostavba rodinného domu v Kubšicích

Představení investora

Investorem byl mladý pár, majitelé pozemku v malebné obci na jihu Moravy. Tito lidé se na nás obrátili v situaci, kdy byli domluveni se stavební firmou, která jim nabídla kromě samotné výstavby rodinného domu i zajištění projektu stavby.

Již v rámci tvorby projektu došlo ke ztrátě důvěry, kdy projekt nebyl řádně konzultován, dokončení oddalováno a při následném prostudování neobsahoval části popisující jednotlivé profese. Takže nebyl zpracován v souladu s vyhláškou a už vůbec nebyl dostatečným podkladem pro realizaci stavby.

Předmětem naší práce byla v první řadě poradenská činnost při odstoupení od smlouvy s vybraným projektantem stavby. V další fázi pak zpracování kompletního projektu novostavby rodinného domu s cílem zajistit maximální kontrolu nad výši investičních prostředků na projekční, inženýrskou i samotnou realizační činnost. Kromě racionální úvahy investora byla totiž snaha o maximální kontrolu nad financemi dána faktem, že náklady byly zajištěny pomocí hypotéky.

Popis naší činnosti

  • Poradenská činnost – v rozsahu zajištění optimální výše honoráře za rozpracovanou projektovou dokumentaci

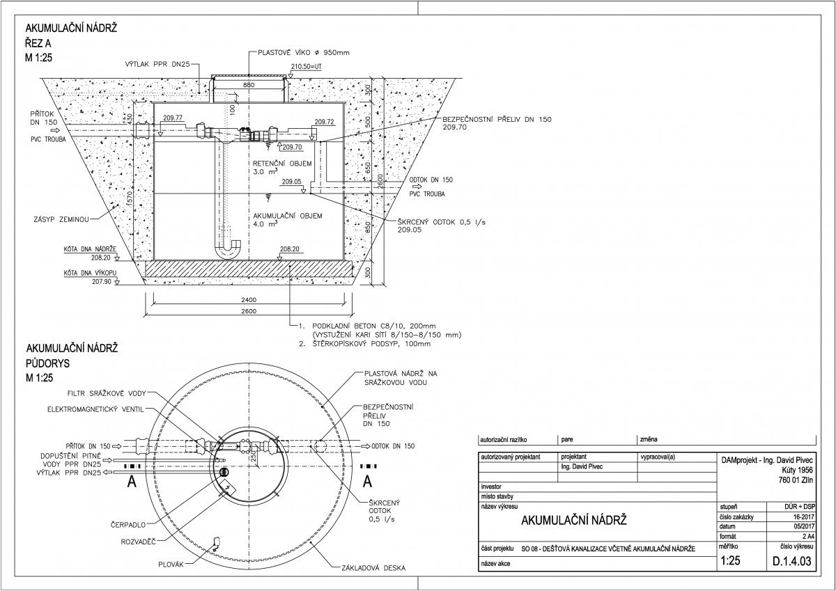
  • Projekční činnost – dokumentace k ohlášení stavby (DSP) + provedení stavby (DPS)

Naše řešení

Výsledkem jednání s předchozím projektantem bylo finanční vyrovnání a odstoupení od smlouvy.

Následně byly zahájeny práce na opravě a doplnění dokumentace. Na základě pravidelných konzultací s investorem došlo k návrhu jednoduchého konstrukčního a materiálového řešení. Výsledkem byla projektová dokumentace nejenom pro povolení stavby, ale hlavně pro její realizaci. Součástí projektu byl i položkový rozpočet.

icon-dotaznik Dotazník investora

2026 © DAMprojekt